Свердловская обл, г Верхняя Пышма, ул Машиностроителей, д 13 3436836800
г Екатеринбург, ул Академика Шварца, д 14 +73436836868

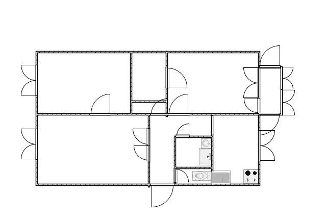
3хк.кв 59 кв.м Юго- западный ID: J901

Комнаты 3
Площадь 59 м²
Кухня 6.6 м²
Этаж 3 из 5
Материал панельный

Описание

3х-к квартира 59м2 , в центре «ЮГО-ЗАПАДНОГО» района с косметическим ремонтом 3 этаж из 5.
• ПАРАМЕТРЫ:
• общая площадь - 59 м2
• кухня - 6.6 кв. м2
• комнаты – 17м2 11 м2 11м2
• сан узел раздельный
• коридор – 5.4м2
• гардеробная - 3 м2
СОСТОЯНИЕ:
• выполнен косметический ремонт
• в комнате на стенах обои,
• пол – ламинат
• ванна – раковина , кафель на стенах ,душевой поддон
• окна квартиры выходят на разные стороны – пластик
ДОМ:
• дом в центре Юго- Западного района
• удачно расположен с точки зрения транспортной доступности
• добропорядочные, приветливые соседи
• окна выходят в тихий двор на разные стороны
• оборудованы детские площадки.

ИНФРАСТРУКТУРА:
• в шаговой доступности школа - № 57
• детские садик общеразвивающего вида -№ 115
• поликлиники, предприятия торговли и бытового обслуживания, кафе, салоны красоты
• торговый центр «ФАН _ФАН », аптеки, стоматологические клиники,- остановки общественного транспорта .
Вблизи дома находятся парк – ПАРК имени 50 ВЛКСМ , для времяпрепровождения семей и молодежи и другие виды развлечений которые доступны жителям района «ЮГО- ЗАПАДНЫЙ»
Возможны любые формы расчета
Если Вас заинтересовал данный объект, то скорее звоните,ФОТО КВАРТИРЫ ПО ЗАПРОСУ
С удовольствием отвечу на все Ваши вопросы и организую показ!
Подробнее

Характеристики

Задать вопрос



Вас также может заинтересовать:

20
4-к.квартира, 77.4 м², 6/9 эт.
Екатеринбург, улица Профсоюзная, д.49
Чкаловский
Ботаническая
7 369 000
  • Общая площадь:77.4 м²
  • Жилая площадь:51.3 м²
  • Площадь кухни:8.1 м²
  • Этаж:6
27
1-к.квартира, 45 м², 2/7 эт.
Екатеринбург, улица Счастливая, д.4
Чкаловский, Солнечный
Ботаническая
6 350 000
  • Общая площадь:45 м²
  • Жилая площадь:17 м²
  • Площадь кухни:14 м²
  • Этаж:2
20
3-к.квартира, 58.5 м², 8/9 эт.
Екатеринбург, улица Автомагистральная, д.23
Железнодорожный
5 800 000
  • Общая площадь:58.5 м²
  • Жилая площадь:16.13 м²
  • Площадь кухни:8 м²
  • Этаж:8

Мы используем файлы cookie, чтобы обеспечить вам наилучший доступ к нашему веб-сайту

Скопировано