Свердловская обл, г Верхняя Пышма, ул Машиностроителей, д 13 3436836800
г Екатеринбург, ул Академика Шварца, д 14 +73436836868

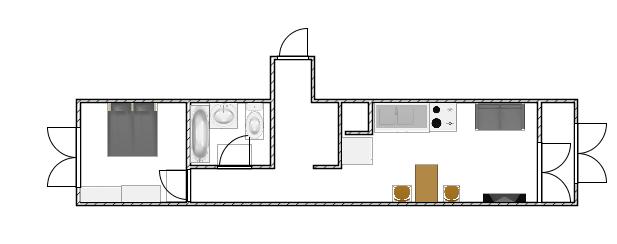
Евро 2к квартира 48м2 Южные кварт ID: J909

Екатеринбург, Центральный, улица Шаумяна, д.20

Комнаты 1
Площадь 48.1 м²
Жилая 25.1 м²
Кухня 20.1 м²
Этаж 5 из 17
Сдача 2021 г.
11 499 000
239 064 /м²
Рассчитать ипотеку
Разина Ольга Александровна

Разина Ольга Александровна
Агент

+7(922)142-1232

borsha11@ya.ru
QR
Ссылка на объект

Описание

Евро2к квартира
Ипотека с низкими ставками от 12,25% от наших доверенных банков-партнеров.

Особенности квартиры

Площадь квартиры 48.1 м2
Жилая площадь 28.1 м2
Кухня 20 м2
С/у 4,5 м2
Лоджия 5 м2

* Квартира с ремонтом , после сделки можно спокойно заезжать
* Совместный с/у
* комната квадратной формы
* окна выходят во двор и на улицу

Дом, и то, что его окружает
* благоустроенный подъезд и хорошие соседи
* двор с закрытой современной детской площадкой, отличное озеленение вокруг дома и во дворе
* множество парковочных мест во дворе дома и за его пределами
* современные лифты
*по всему периметру двора камеры для безопасности

Инфраструктура, которая делает жизнь комфортной

* детский сад: 222, 11, 14, 561, 147, 449, 233, 79, 114, 115
* школа 57, 143, 141, 175, 7, 185
* гимназия 116
* магазины: Пятерочка, Верный, Магнит
* аптеки: Аптека Плюс, Вита Экспресс, Живика
* А также ТЦ Фан Фан, парк 50 лет ВЛКСМ, училище олимпийского резерва, УралГУФК, колледж и институт Физичнской Культуры

Общественный транспорт
* автобусы: 55, 98, 46, 42, 93
* троллейбус: 27, 28

Легкий процесс приобретения

* 1 собственник
* возможны различные варианты оплаты, включая ипотеку на выгодных условиях

Наши специалисты могут помочь с переездом и сборкой мебели. Федеральная компания "Самолет Плюс" гарантирует финансовую безопасность для наших клиентов.
Звоните или пишите с любыми вопросами. Мы с удовольствием расскажем Вам больше и организуем просмотр!
Подробнее

Характеристики

  • Тип недвижимости Квартиры
  • Населенный пункт Екатеринбург
  • Район Центральный
  • Адрес улица Шаумяна, д.20
  • Станция метро Чкаловская ( 1642 мин.)
  • Количество комнат 1
  • Год постройки дома 2021 г.
  • Общая площадь 48.1 м²
  • Жилая площадь 25.1 м²
  • Площадь кухни 20.1 м²
  • Этаж 5
  • Этажей в доме 17
  • Тип санузла Совмещенный
  • Тип балкона лоджия
  • Ремонт евроремонт
  • Состояние объекта отличное
  • Наличие мебели да
  • Мусоропровод нет
  • Вид из окон во двор и на улицу
  • Высота потолков в метрах 2.7 м.
  • Тип дома блочный

Задать вопрос



Вас также может заинтересовать:

14
2-к.квартира, 61.5 м², 13/24 эт.
Екатеринбург, улица Библиотечная, д.48

11 350 000
  • Общая площадь:61.5 м²
  • Жилая площадь:30 м²
  • Площадь кухни:12.3 м²
  • Этаж:13
21
3-к.квартира, 78.4 м², 9/9 эт.
Екатеринбург, улица Академика Ландау, д.7, к.б
Ленинский
9 600 000
  • Общая площадь:78.4 м²
  • Жилая площадь:30 м²
  • Площадь кухни:25 м²
  • Этаж:9
22
3-к.квартира, 79.4 м², 11/12 эт.
Екатеринбург, улица Родонитовая, д.22
Чкаловский, Ботаника
Ботаническая Чкаловская
8 700 000
  • Общая площадь:79.4 м²
  • Жилая площадь:50.4 м²
  • Площадь кухни:10.3 м²
  • Этаж:11

Мы используем файлы cookie, чтобы обеспечить вам наилучший доступ к нашему веб-сайту

Скопировано