Свердловская обл, г Верхняя Пышма, ул Машиностроителей, д 13 3436836800
г Екатеринбург, ул Академика Шварца, д 14 +73436836868

Продажа 1-к.квартира, 25 м², 3/5 эт. ID: J918

Екатеринбург, Ленинский, улица Уктусская, д.41

Чкаловская Север-Юг 1643 мин.
Комнаты 1
Площадь 25 м²
Кухня 4 м²
Этаж 3 из 5
Сдача 1973 г.
Материал кирпичный
3 550 000
142 000 /м²
Рассчитать ипотеку
Казанцева Ирина Николаевна

Казанцева Ирина Николаевна
Брокер ипотека/страховка

+7(932)602-8228

sam.kross1@mail.ru
QR
Ссылка на объект

Описание

Продается однокомнатная квартира 25 кв.м. на Уктусской, 41. с ремонтом и мебелью!!!
Возможно приобрести под ставку 12,75% от банков партнеров.
В 15 минут ходьбы до самого центра города площади 1905 года.

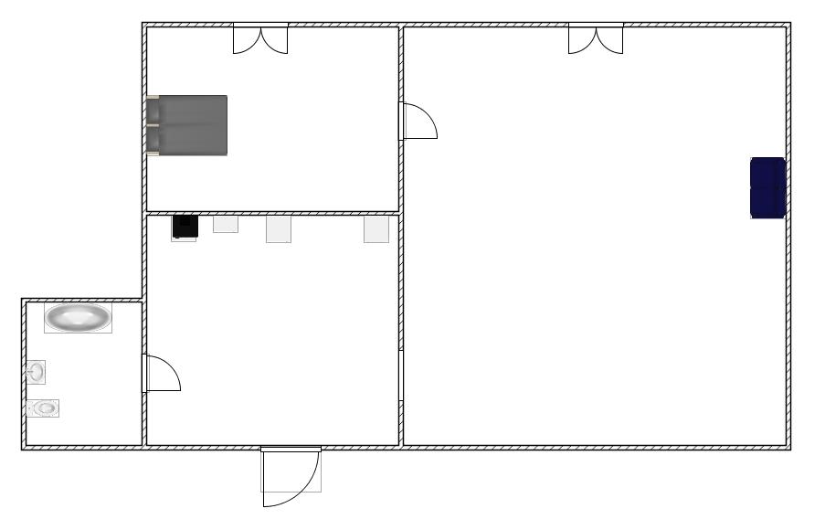
ПАРАМЕТРЫ КВАРТИРЫ:
- 3 этаж в пятиэтажном кирпичном доме.
- Общая площадь - 25 кв.м.
- комнаты 11+6 кв.м.
- кухня 5 кв.м.
- санузел 3 кв.м.

ДОМ:
- Удачно расположен с точки зрения транспортной доступности
- Добропорядочные, приветливые соседи.
- Всегда есть парковочные места.

ИНФРАСТРУКТУРА:
- Развитая инфраструктура, магазины и кафе, банки, остановки транспорта рядом с домом.
- Рядом с домом детский сад № 366 на Уктусской, 56 и детский сад № 451 на Шмидта, 121
- Школа №185 на Уктусской, 10 и школа № 18 на Авиационной, 18

Записаться на просмотр можно по телефону или в сообщениях! Рассмотрим все ваши предложения и покажем квартиру в удобное время!


ФЕДЕРАЛЬНАЯ КОМПАНИЯ "САМОЛЕТ ПЛЮС" ГАРАНТИРУЕТ ФИНАНСОВУЮ БЕЗОПАСНОСТЬ, ВСЕ НАШИ СДЕЛКИ ЗАСТРАХОВАНЫ.
Подробнее

Характеристики

  • Тип недвижимости Квартиры
  • Населенный пункт Екатеринбург
  • Район Ленинский
  • Адрес улица Уктусская, д.41
  • Станция метро Чкаловская ( 1643 мин.)
  • Количество комнат 1
  • Год постройки дома 1973 г.
  • Общая площадь 25 м²
  • Площадь кухни 4 м²
  • Этаж 3
  • Этажей в доме 5
  • Тип санузла Совмещенный
  • Тип балкона нет
  • Ремонт косметический
  • Состояние объекта хорошее
  • Наличие телефона нет
  • Наличие интернета да
  • Наличие мебели да
  • Мусоропровод нет
  • Вид из окон во двор
  • Тип дома кирпичный

Задать вопрос



Вас также может заинтересовать:

16
4-к.квартира, 61.1 м², 3/5 эт.
Екатеринбург, улица Щербакова, д.141, к.а

4 249 000
  • Общая площадь:61.1 м²
  • Жилая площадь:45.7 м²
  • Площадь кухни:6 м²
  • Этаж:3
17

Студия, 20.7 м², 6/25 эт.
Екатеринбург, улица Евгения Савкова, д.35/2
Академический
3 600 000
  • Общая площадь:20.7 м²
  • Жилая площадь:15.7 м²
  • Площадь кухни:5 м²
  • Этаж:6
15
1-к.квартира, 29 м², 3/5 эт.
Екатеринбург, переулок Короткий, д.9/20
Чкаловский
3 380 000
  • Общая площадь:29 м²
  • Жилая площадь:15 м²
  • Площадь кухни:6 м²
  • Этаж:3

Мы используем файлы cookie, чтобы обеспечить вам наилучший доступ к нашему веб-сайту

Скопировано