Свердловская обл, г Верхняя Пышма, ул Машиностроителей, д 13 3436836800
г Екатеринбург, ул Академика Шварца, д 14 +73436836868

Продажа 2-к.квартира, 44 м², 5/5 эт. ID: J900

Екатеринбург, Чкаловский, улица Селькоровская, д.104

Комнаты 2
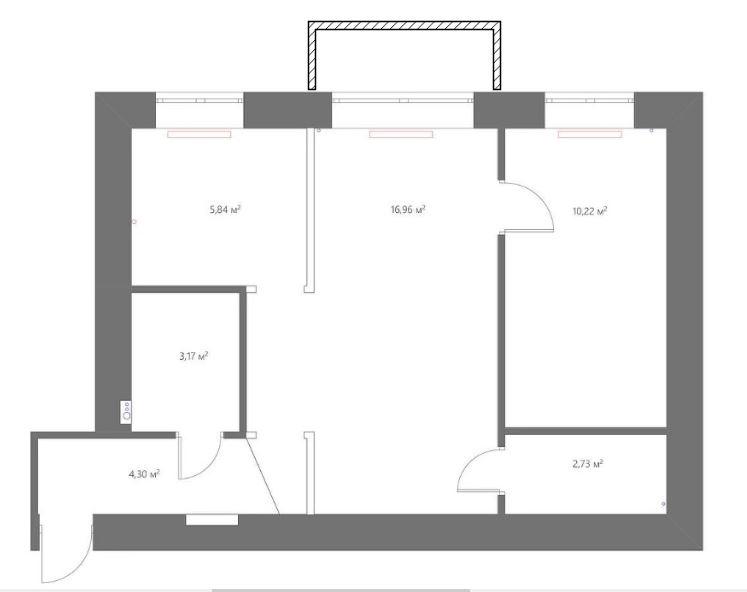
Площадь 44 м²
Кухня 6 м²
Этаж 5 из 5
Сдача 1967 г.
Материал кирпичный
3 650 000
82 954 /м²
Рассчитать ипотеку
Маракова Ольга Александровна

Маракова Ольга Александровна

+7(905)800-0262

o.marakova@mail.samoletplus.ru
QR
Ссылка на объект

Описание

СРОЧНО! Продается квартира площадью 44 кв. м на пятом этаже 5-ти этажного кирпичного дома.
ВОЗМОЖНО ПРЕОБРЕСТИ ПОД СТАВКУ 13,75% ОТ БАНКОВ-ПАРТНЕРОВ!!

Очень удобное местоположение: рядом с домом автобусная остановка, остановка городской электрички, магазины, напротив дома детский сад. Вся инфраструктура в шаговой доступности.

Квартира чистая, светлая и очень теплая.

Основные характеристики квартиры:
Год постройки дома - 1967г
Общая площадь - 44 кв.м.
Жилая площадь- 29 кв. м.
Площадь кухни- 6 кв. м.
Комнаты - 17, 11 кв. м.
Этаж - пятый этаж пятиэтажного дома
Тип дома - кирпичное здание
Высота потолков - 2,5 метра
Вид из окон - на улицу, солнечная сторона
Ремонт - необходим косметический ремонт
Санузел - совмещенный

ЛЕГКО КУПИТЬ: Документы готовы. Без обременений, арестов и долгов. Два совершеннолетних собственника. Квартира освобождена - любой вариант оплаты.

НАША КОМПАНИЯ "САМОЛЕТ ПЛЮС" ГАРАНТИРУЕТ ФИНАНСОВУЮ БЕЗОПАСНОСТЬ ДЛЯ НАШИХ КЛИЕНТОВ.

Требуется ремонт! Но партнёры компании «Самолёт Плюс» сделают ремонт «под ключ» с гарантией на 12 месяцев. Возьмут на себя всё: от выбора материалов до установки бытовой техники.
Новая квартира и свежий ремонт в одной покупке. Можно рассчитать в ипотечную программу.
Возможности улучшения качества жизни:
- Идеальное место для реализации собственных дизайнерских решений и ремонтных проектов
- Возможно сдавать в аренду или проживать самостоятельно, прекрасный выезд на Екад, Полевской тракт!

С удовольствием отвечу на все Ваши вопросы и организую показ.
Звоните и записывайтесь на показ!
Подробнее

Характеристики

  • Тип недвижимости Квартиры
  • Населенный пункт Екатеринбург
  • Район Чкаловский
  • Адрес улица Селькоровская, д.104
  • Станция метро Ботаническая ( 1673 мин.)
  • Количество комнат 2
  • Год постройки дома 1967 г.
  • Общая площадь 44 м²
  • Площадь кухни 6 м²
  • Этаж 5
  • Этажей в доме 5
  • Тип санузла Совмещенный
  • Тип балкона балкон
  • Ремонт требует ремонта
  • Состояние объекта нормальное
  • Наличие интернета да
  • Мусоропровод нет
  • Вид из окон на улицу
  • Высота потолков в метрах 2.5 м.
  • Тип дома кирпичный

Задать вопрос



Вас также может заинтересовать:

17
2-к.квартира, 38.9 м², 1/3 эт.
Екатеринбург, улица Бажова, д.43
Кировский
4 490 000
  • Общая площадь:38.9 м²
  • Жилая площадь:22 м²
  • Площадь кухни:5 м²
  • Этаж:1
17
Студия, 23 м², 1/5 эт.
Екатеринбург, улица Профсоюзная, д.77

3 000 000
  • Общая площадь:23 м²
  • Жилая площадь:19 м²
  • Площадь кухни:4 м²
  • Этаж:1
18
Студия, 22 м², 1/5 эт.
Екатеринбург, улица Просторная, д.146
Чкаловский, Уктус
Ботаническая
3 435 000
  • Общая площадь:22 м²
  • Жилая площадь:17 м²
  • Площадь кухни:5 м²
  • Этаж:1

Мы используем файлы cookie, чтобы обеспечить вам наилучший доступ к нашему веб-сайту

Скопировано